Rif: IMMO-125858027
ABANO TERME
PADOVA
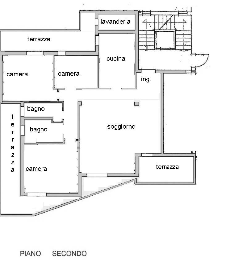
Abano Terme, appartamento in quartiere signorile in contesto con aree verdi e comodo a tutti i servizi necessari quali supermercati, bar, tabaccheria , scuole ecc. Circonvallazione esterna raggiungibile in pochi minuti . Posto al secondo ed ultimo piano , molto luminoso con esposizione a sud-est-ovest in piccola palazzina del 1982, ben curata e con poche spese condominiali. L'appartamento è stato completamente ristrutturato nel 2025 e presenta tutte le caratteristiche per essere abitato subito senza necessità di interventi. Ci accoglie un elegante salotto con camino perfettamente funzionante e con accesso ad un terrazzo abitabile, cucina arredata a nuovo con mobili di design e completa di tutti gli elettrodomestici ,,tre camere da letto a scalare di cui 2 con accesso a terrazze avvolgenti, 2 bagni e lavanderia con accesso dal poggiolo. Praticamente tutto l 'appartamento è circondato da terrazze con piacevoli affacci. L'immobile è dotato di infissi ad alto rendimento energetico ed aria condizionata. Il tutto è completato ad un ampio garage con accesso direttamente dall'interno del condominio ed una capiente cantina.
Consistenze
| Descrizione | Superficie | Sup. comm. |
|---|---|---|
| Principali | ||
| Immobile - 2° piano | 136 Mq | 136 Mqc |
| Totale | 136 Mqc | |
