Rif: centro
PADOVA
PADOVA - zona Santa Sofia - Altinate
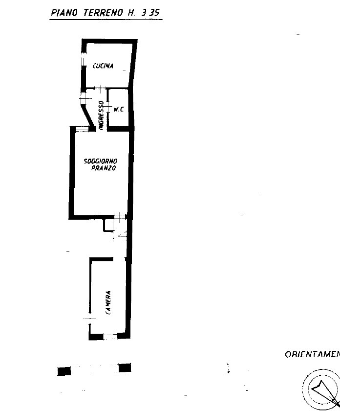
In esclusiva! Via C.Battisti a 50 metri dagli Ospedali e 5 minuti a piedi dal centro appartamento al piano terra con ingresso indipendente in contesto storico e con posto auto di proprietà nella corte comune piacevole e ben curata .Si accede all'immobile dall androne di ampia metratura e si compone di ingresso, cucina abitabile, bagno, soggiorno con grazioso soppalco/libreria; un piccolo corridoio, attrezzato di ripostiglio/wc, conduce alla camera matrimoniale a cui si accede anche dal portico esterno. Altezze importanti e travi a vista caratterizzano l'intero appartamento. Riscaldamento autonomo e aria condizionata. A completare il tutto abbiamo una cantina .
Consistenze
| Descrizione | Superficie | Sup. comm. |
|---|---|---|
| Principali | ||
| Immobile - piano terra | 65 Mq | 65 Mqc |
| Totale | 65 Mqc | |
