Rif: V41
SELVAZZANO DENTRO
PADOVA
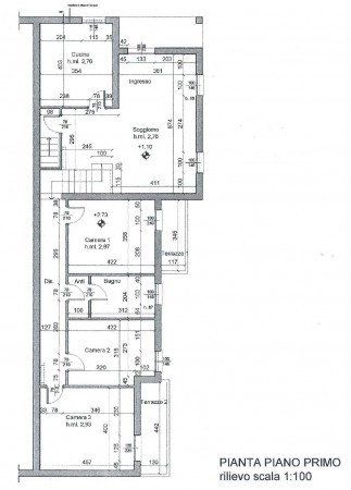
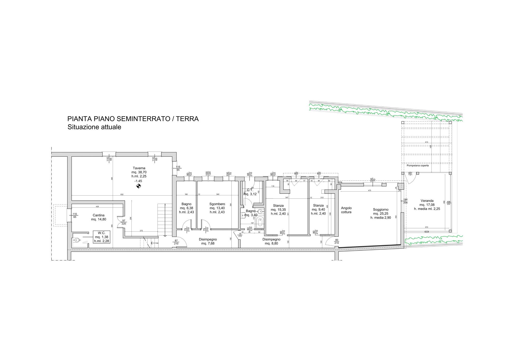
Selvazzano Dentro a 500 mt. dalla chiesa , comodo ai servizi ed ai collegamenti principali, porzione di bifamiliare di circa 250 mq su 2 livelli ristrutturata nel 2008 e nel 2025. Per la distribuzioni degli spazi, l'immobile è adatto anche a soluzione genitori/figli, con spazi ben distinti e separati. Piano Rialzato: Ingresso, soggiorno con accesso al giardino, ampia cucina, 3 camere matrimoniali con terrazze, bagno. Il piano terra, collegato all'unità principale ma con ingresso anche indipendente dall'esterno ( senza barriere architettoniche ) è composto da soggiorno con angolo cottura collegato al giardino d'inverno/veranda molto luminoso con ampie vetrate scorrevoli con splendido affaccio sul verde privato molto curato e alberato, bagno finestrato; 1 camera matrimoniale, 1 camera singola, ampia cabina armadio/ripostiglio , bagno /lavanderia ;al piano seminterrato taverna di 35 mq. con camino , servizio, cucina H.2,40. La porzione di bifamigliare gode di uno scoperto di circa 520 mq. in parte pavimentato e in parte piantumato con cura, angolo con tettoia per pranzi o cene all'aperto. La ristrutturazione del 2008 e del 2025 è stata effettuata con cura e attenzione ai particolari, infissi esterni con vetro triplocamera, aria condizionata a zona, bagni e impianti completamente rifatti . Facciate esterne appena pitturate.
Nel rispetto della Legge sulla Privacy, l'indirizzo ed il puntatore riportato nell'annuncio e nella mappa sono indicativi e non corrispondono all'indirizzo esatto in cui si trova l'immobile.
Vi invitiamo a contattarci per fornirvi maggiori informazioni sull'immobile.
Nel rispetto della Legge sulla Privacy, l'indirizzo ed il puntatore riportato nell'annuncio e nella mappa sono indicativi e non corrispondono all'indirizzo esatto in cui si trova l'immobile.
Vi invitiamo a contattarci per fornirvi maggiori informazioni sull'immobile.
Consistenze
| Descrizione | Superficie | Sup. comm. |
|---|---|---|
| Principali | ||
| Immobile - piano terra | 250 Mq | 250 Mqc |
| Accessorie | ||
| Box/Garage - piano terra | 25 Mq | 12 Mqc |
| Esterno - piano terra | 500 Mq | 50 Mqc |
| Totale | 312 Mqc | |
